PROJET EN COURS… D’AMENAGEMENT D’UNE CONSTRUCTION
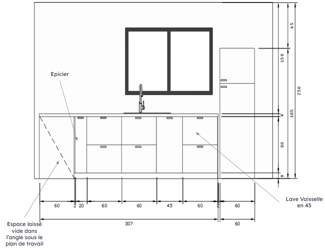
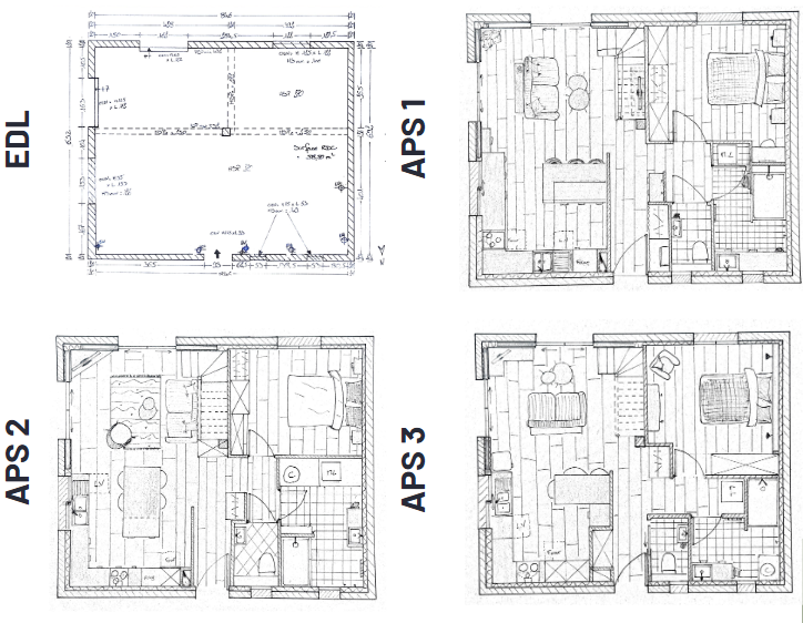
Sur cette construction nous sommes partis des besoins (chambre d’au moins 12m2, passages de porte en 80; dimensions de placards que les clients avaient déjà, dimension de la douche, tout ce qui était nécessaire dans la cuisine…) et avons monté les cloisons en fonction. C’est donc un plan purement sur mesure, optimisé dans les moindre recoins. Voici en image les plans APS-APD-SCHEMA ELEC- LIGNES DIRECTIVES DECO.
A suivre…
Prestations réalisées sur ce projet : Étude de conception & Suivi de chantier.







